The purpose of the meeting is a statutory public meeting to hear from the public regarding merits and concerns related to the application for site specific zoning.
Council does NOT make a decision at this time.
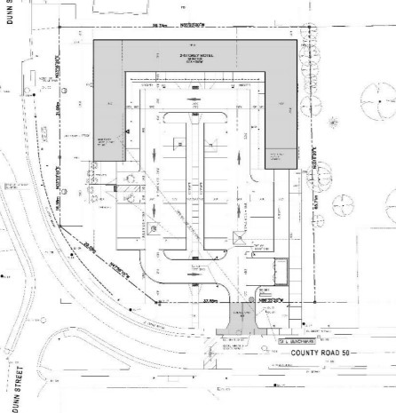
Proposed zoning change is being asked to permit a two-storey Motel development with 28 guest rooms. The zoning will remain R3.1 with the Motel as an additional permitted land use. The Motel will also include on-site parking for staff and patrons, a cafe and indoor bicycle storage facilities.
Full Agenda below, tune into Essex Ontario YouTube at 4:30 to hear the presentation.




