Meeting Information
The Council for the Town of Essex will hold a virtual public meeting on Monday June 7, 2021 starting at
4:30pm to consider an amendment to the General Zoning By-law 1037 under the provisions of the Planning Act,
R.S.O. 1990.
You are invited to attend this electronic meeting and to express any interest you may have in the requested
amendments. This matter is also scheduled for formal decision at the Regular Council Meeting on Monday June 21,
2021 commencing at 6:00pm.
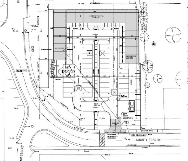
Proposal
The applicants have submitted an application for site specific zoning bylaw amendment to allow for the following:
• A two-storey Motel development with thirty-two (32) guestrooms
The proposed development will also include the following regulations:
• A minimum front yard depth of 15 metres
• A minimum rear yard depth of 3 metres
• A minimum exterior side yard width of 8 metres
• A minimum interior side yard width of 3 metres
• A maximum building height of 10 metres
The subject lands are zoned Residential District 3.1 for High Density Residential under the Town of Essex
Comprehensive Zoning Bylaw, Bylaw 1037. The development will also include a 37 square metre café with outdoor
patio area and an accompanying parking area accommodating a total of thirty-four (34) parking spaces and two (2)
bicycle spaces (indoor bicycle storage facilities are also proposed).
Roofed accommodations which include a motel are permitted uses under the Colchester Secondary Plan for lands
designated “Main Street Area”. A Site Plan has been attached for reference. The development will also be subject to
Site Plan Control approval.
Public Comment and Rights to Appeal
Any person may attend the virtual public meeting and/or make written or verbal comments in support of or in
opposition to the proposed amendments. Any person who wishes to attend this meeting electronically and/or
speak at this meeting as a delegate will need to register as an electronic delegation by providing their contact
information to the Planning Division via email to essexplanning@essex.ca or by phone at 519.776.7336
extension 1128 no later than the deadline of 24 hours prior to the date and time of the scheduled meeting.
Attendees/delegates will be contacted directly with registration details prior to the meeting.
