Update: Monday Nov 29th tanks will be removed and the collection of confirmatory soil samples will take place.
Update: Monday Council is Looking to approve the Proposed Site Plan for the Grove Hotel
The Town is going to remove the gas tanks and do a soil check to make sure it is not contaminated. The Town is still the legal owner of the property and now that the tanks are discovered they must be removed. We are practicing ongoing due diligence and hope the issues will be resolved early January.
Tune in Monday night to our Essex Ontario YouTube Channel and watch the discussion.
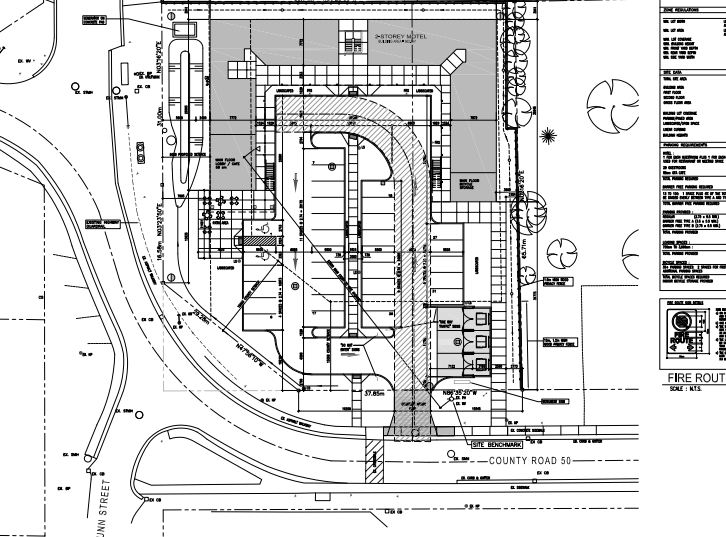
“The Town of Essex is in receipt of a Site Plan Control application for the property known
municipally as 96 County Road 50 West. A two-storey Motel development with twenty-eight (28) guestrooms including a 58 square metre café with outdoor patio area, and, an ancillary parking area to accommodate a total of thirty-four (34) parking spaces, including two (2) accessible parking spaces and two (2) bicycle parking spaces (indoor bicycle storage facilities are also proposed)”.
Full Report on the Link Below:
https://townofessex-pub.escribemeetings.com/filestream.ashx?DocumentId=5996

#359